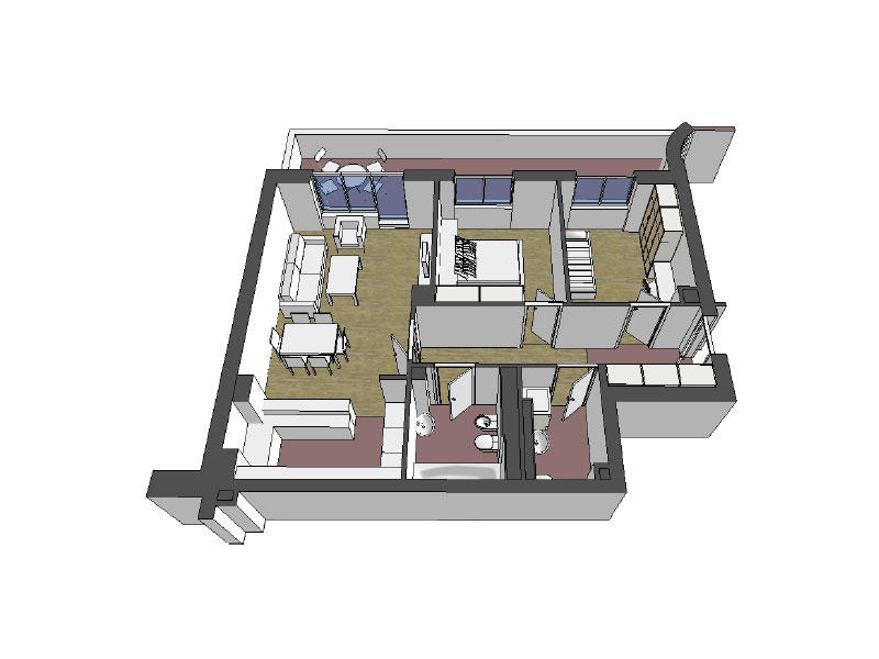
A-2.1
P = 78.12 m2
- Hodnik gress + parket P= 10,63 m2
- WC gress P= 3,77 m2
- Kupatilo gress P= 4,64 m2
- Kuhinja gress P= 8,55 m2
- Dnevni boravak + Trpezarija parket P= 20,42 m2
- Spavaća soba 1 parket P= 12,48 m2
- Spavaća soba 2 parket P= 11,17 m2
- Terasa gress P= 6,46 m2


